Veřejná prezentace s diskuzí k projektu volnočasových ploch v lokalitě Babinec

Pozvánka na veřejnou prezentaci s diskuzí k projektu volnočasových ploch v lokalitě Babinec - 19. ledna 2022 od 15.30 hodin v kulturním domě na ul. Vlkovská ve Velké Bíteši.
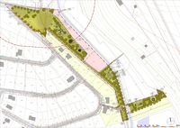
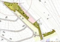
S návrhem volnočasových a odpočinkových ploch v...
Kde a kdy
19.01.2022
15:30 - 23:59
Velká Bíteš
Kontakt
Velká Bíteš
Velká Bíteš
Velká Bíteš
...ploch v prostoru lokality Babince vás seznámí a na dotazy odpoví autor celého projektu Ing. arch. Milan Nytra se svými spolupracovníky a rovněž budou přítomni zástupci města Velká Bíteš.
